strona główna    inf. o inwestycji    plany i ceny mieszkań    lokale usługowe    kredyty na zakup mieszkań    galeria    kontakt
Osiedle MintCity
WIZUALIZACJA

Zapraszamy do Biura Sprzedaży na terenie inwestycji!
ul. Budowlana 7 (wejście od ul. Wysockiego)
e-mail: [email protected]

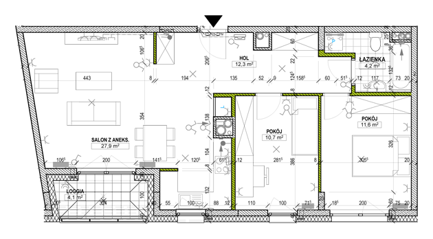
Mieszkanie nr 37 (1 ETAP)

pobierz plan mieszkania w formacie PDF:   PDF
piętro piętro 6
ilość pokoi 3
metraż (m kw.) 56.80
elementy dodane altana
metraż elementów dodanych (m kw.) 7.00
wartość mieszkania brutto NIEDOSTĘPNE

Cena nie stanowi oferty w rozumieniu art. 66 kodeksu cywilnego.

Podaj swoje dane,
skontaktujemy się
z Tobą!

FORMULARZ KONTAKTOWY

imię i nazwisko:



adres e-mail:



telefon:



preferowana data kontaktu:



dodatkowe uwagi i zapytania (jeżeli interesuje Cię nasza bezpłatna pomoc w uzyskaniu kredytu na zakup mieszkania, prosimy o odnotowanie tego faktu poniżej):



preferowane miejsce parkingowe:



skąd wiesz o naszej inwestycji?



plan mieszkania nr 37 (1 ETAP)


copyright © 2017 MintCity